モデルハウスで体感
来場予約
まずは資料請求から
資料請求
Concept
近藤建設のモデルハウス「ライフフィットスタジオ浦和」を参考に、大きなコーナー窓がある大開口リビングを実現されたH様。窓辺にはぐるりとベンチを配して、外の景色を眺めたり、お子様が遊んだりできるようにしました。またご親戚などの来客が多いため、玄関脇に和室を配置。自由設計ならではの、ライフスタイルにぴったりのお住まいが完成しました。
Point.01
スクエア+片流れのスタイリッシュな外観
スクエアなフォルムに片流れ屋根を組み合わせたおしゃれな外観は、担当建築士がご提案しました。玄関側は窓を最小限に抑え、形や配置もプライバシーに配慮。外壁はホワイト系をベースに、濃淡をつけたブラウン系のアクセントサイディングで表情豊かに仕上げました。
Point.02
借景を楽しむ大開口リビング
「窓いっぱいの大開口リビング」というH様の希望で、より明るく、緑の借景を取り込める2階にLDKを配しました。コーナーを含めてリビングの2面がほぼ窓のため、陽射しがたっぷりと入ります。窓辺には自社大工がベンチを造作。ベンチ下の一部は収納やお掃除ロボットの基地になっています。
Point.03
リビングと緩やかにゾーン分けされたDK
リビングとDKはずらして配置することで、緩やかに空間を分けています。リビングエリアは折り上げ天井で開放的に、DKエリアはお洒落な照明がアクセントの落ち着いた雰囲気に。「収納は見せたくない」という奥様のご希望で、キッチン収納は引き戸で隠せるタイプのものを採用しました。
Point.04
回遊動線のシューズクロークと和室
お客様の応対やご親戚の宿泊に便利なよう、玄関の横に地窓つきのモダン和室を配置しました。玄関との間の引き戸を閉めれば、落ち着いた個室として使える設計です。また家族用玄関の役目も果たすシューズクロークは、廊下へ通り抜けられる動線も確保。帰宅後すぐに洗面台で手洗いができます。
Point.05
家事効率を考えた水まわり
使いやすいオープン棚を備えた脱衣室は、洗面室と仕切って使える設計です。脱衣室~洗面室~家族共用のウォークインクロゼット~ランドリールームは一直線につながっており、ランドリールームで乾かした衣類をすぐにクロゼットにしまえる無駄のない動線で、お洗濯の時短が実現しました。
Point.06
オープン収納が便利な子ども部屋
子ども部屋のクロゼットは使いやすさを優先して扉を設けず、遊び心を感じるクロスを貼っています。お子様たちが楽しみながら自主的に、おもちゃや本を片付けられる工夫がされています。
Point.07
おしゃれなインテリア
こだわりの照明や、さりげなく置かれたアート作品など、おしゃれなインテリアが素敵です。
floor plan
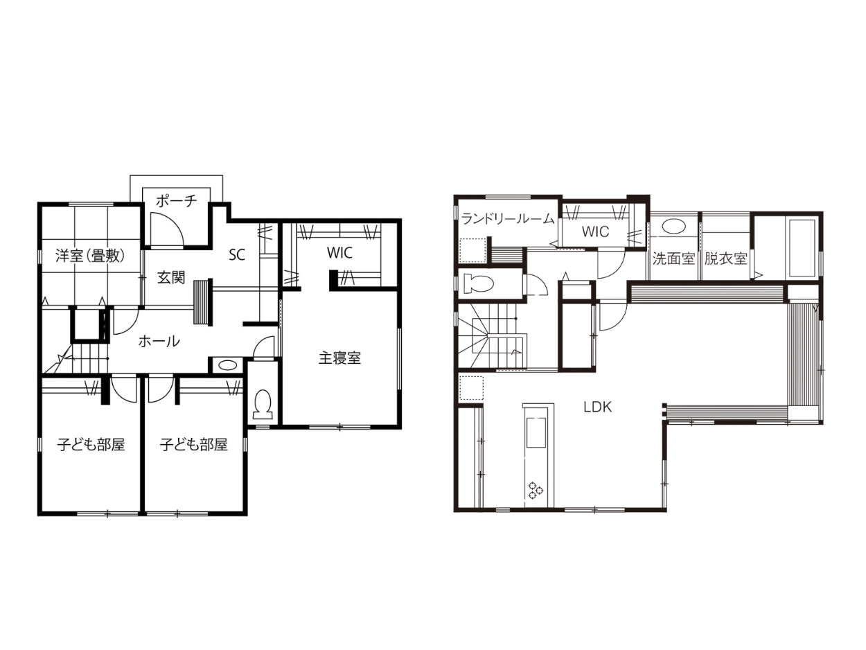
間取り紹介
主寝室や子ども部屋などのプライベートな空間は1階にレイアウト。2階には開放的なLDKと、水まわりが集約して配置されています。
事例検索に戻る
^