ミッドセンチュリーモダンの洗練空間。「好き」を集めたアメリカンハウス
埼玉県 Y様
南向きの丘の上に建つY様邸は、カバードポーチのある西海岸スタイルの外観が、ひと際目を引くお住まいです。室内はミッドセンチュリーモダン×ホテルライクなインテリアがセレクトされ、Y様の「好き」が詰まった洗練の空間が広がります。ピクチャーライトなどのおしゃれな照明計画や、カウンターと吊り戸棚を同素材で造作したキッチン、輸入扉をしつらえた玄関収納など、Y様の素材やデザインへのこだわりにも、専属のコーディネーターがしっかりと応えました。
Point.01
青空に映える西海岸スタイルの外観
白いサイディングが青空に映える外観です。カバードポーチは、バランスを考えた柱の配置はもとより、丘に吹き上げてくる風にも耐えられるよう、担当建築士が構造と絡めて頑丈に設計しました。Y様のお父様が施工された石積みの階段も、素朴な力強さが建物とよく調和しています。
Point.02
爽やかな風と高台の眺望を楽しむカバードポーチ
開放的な高台に建つY様邸。リビング・ダイニングからもキッチンからも出入りできるカバードポーチでは、眼下の街並みや遠くの山々を眺めながら、ティータイムやBBQが楽しめます。玄関のマリンランプはY様のリクエスト。アメリカンハウスらしい雰囲気を醸し出しています。
Point.03
LDKは吹き抜けと大開口窓が開放的
大きな窓が明るい光を採り込む吹き抜けリビングで、趣味のギター演奏を楽しむY様。キッチンはフルフラットの対面式で、白い椅子がおしゃれなカフェのよう。階段のメタリックな手摺りや、モダンなデザインのピクチャーライトは、担当コーディネーターが空間に合わせてセレクトしました。
Point.04
「好き」を集めて/ミッドセンチュリーモダンなインテリア
家具はモダンで実用的なデザインをセレクト。内装では、キッチン床を海外の住まいを思わせる石貼り調に、造作カウンターと吊り戸棚は、面材を同素材で統一しました。また玄関の框(床と土間の境目に取り付ける化粧部材)はステンレスで造作、収納扉は輸入建材メーカーで探しました。レトロなスイッチも素敵です。
Point.05
「好き」を集めて/オシャレな趣味グッズたち
リビングの一角にはギタースタンドを置いて、いつでも好きな時に弾けるように。ヴィンテージ感のあるレコードプレーヤーや雑貨たちも、ミッドセンチュリーモダンなインテリアのアクセントになっていて、Y様は「好き」に囲まれた暮らしを満喫されています。
Point.06
機能的なキッチン&ホテルライクな水まわり
マットなカラーのシステムキッチンはシンプルで機能的。カバードポーチと行き来できる動線は、BBQの際にも便利です。白で統一された洗面室は、スタイリッシュな化粧台や間接照明がホテルライク。造作棚が便利な脱衣室と洗面室は引き戸でつなげ、LDKとも回遊動線で結びました。
Point.07
プライベート空間の寝室・書斎
2階の洋室は、将来2部屋に仕切れる設計で、現在はゆったりとした主寝室として使用されています。生活感が出がちなオープンクローゼットも、Y様のセンスでお店のような見せる収納に。また書斎は約1畳ですが、スッキリと落ち着いた空間なので仕事に集中できそうです。
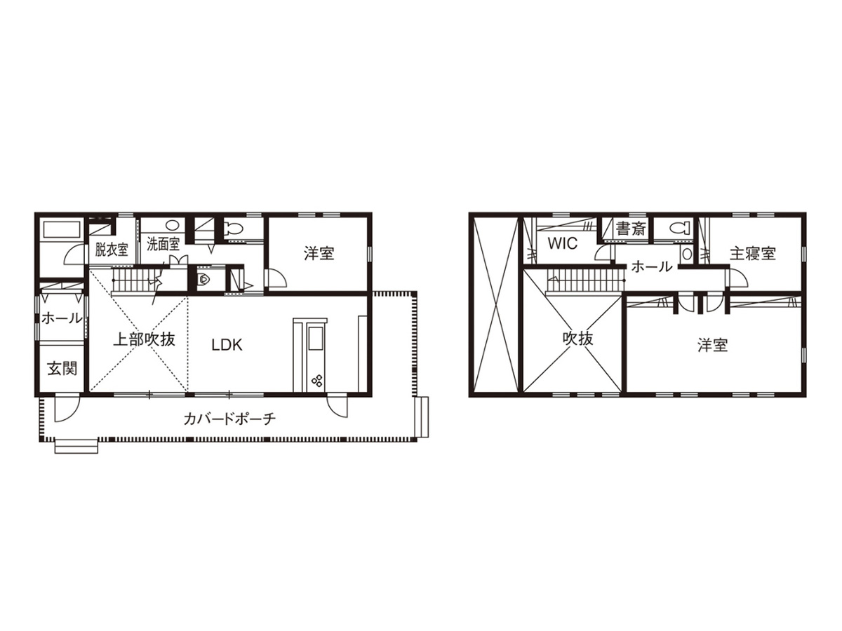
floor plan
間取り紹介
1階では、LDKからも玄関からもアクセスできるカバードポーチが、アウトドアリビングとして大活躍。また年齢を重ねたら1階完結で暮らせるよう、個室も1室設けて平屋風にしていることもポイントです。2階には2室に分けられる洋室などの個室と書斎、大型収納を配置しました。
クリック・タップで詳細を拡大表示
お問い合わせ
来場予約・カタログ請求・その他のお問い合わせはこちらから。